Πάρος Χρυσή Ακτή

Λεπτομέρειες

  • Θέση : Νήσος Πάρος, Χρυσή Ακτή (Βελανιές)
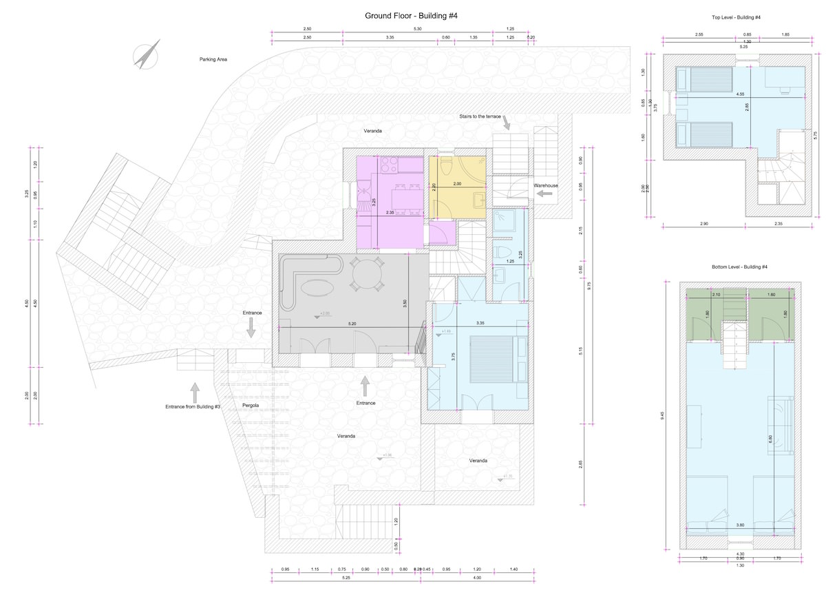
  • Εμβαδόν Οικίας: 115,38 τμ
  • Υπνοδωμάτια: 3
  • Λουτρά: 2
  • Προσανατολισμός: μεσημβρινός (νότιος)
  • Εμβ. Κτήματος: 6721 τμ
  • Θέσεις Σταθμ.: 4

Πληροφορίες

Παραδοσιακή ανεξάρτητη μονοκατοικία στη ΧΡΥΣΗ ΑΚΤΗ, εμβαδού 115,38 τ.μ. + αποθήκη, 3 υπνοδωμάτια, 2 μπάνια, ανεξάρτητη κουζίνα με σαλόνι, τζάκι, απεριόριστη θέα, μεγάλες βεράντες περιμετρικά, πέργκολα, μεσημβρινός προσανατολισμός, παροχή δημοτικού νερού, επιπλέον δεξαμενή νερού 60 κ.μ. με πιεστικό σύστημα, τριφασικό ρεύμα, προεγκατάσταση air condition και συναγερμού, αποροφητήρα, θερμοσίφωνα, πλακόστρωτο χώρο στάθμευσης 4 αυτοκινήτων, πλήρως διαμορφωμένο ακάλυπτο χώρο με αυτόματο πότισμα, κουφώματα ΕΧΠΑ, Grohe μπαταρίες, 2 χλμ. από Δρύο και 3 χλμ. από αγορά Μάρπησσας (φαρμακείο, σούπερ μάρκετ, φούρνο κ.λπ. ) σε κτήμα 6721 τ.μ.
Ανακαίνιση

Ανακαίνιση

Αυθαίρετα

Αυθαίρετα

Ενεργειακή αναβάθμιση

Ενεργειακή αναβάθμιση

Πωλήσεις ακινήτων

Πωλήσεις ακινήτων

ΔΙΕΥΘΥΝΣΗ

Παράσχου 34, Αθήνα, Πεδίον Άρεως
Πάρος, Χρυσή Ακτή (Βελανιές)

ΩΡΕΣ ΛΕΙΤΟΥΡΓΙΑΣ

Δευτέρα - Παρασκευή
9 AM - 5 PM
Σάββατο
10 AM - 3 PM

ΜΙΛΗΣΤΕ ΜΑΣ

Κιν.:
+30 694 554 4184
Τηλ. Αθήνα:
+ 30 210 645 0060-1
Τηλ. Πάρος:
+30 22840 43 442
Email:
Αυτή η διεύθυνση ηλεκτρονικού ταχυδρομείου προστατεύεται από τους αυτοματισμούς αποστολέων ανεπιθύμητων μηνυμάτων. Χρειάζεται να ενεργοποιήσετε τη JavaScript για να μπορέσετε να τη δείτε.